FORREST AIRFIELD
WESTERN AUSTRALIA
IN AUSTRALIA DURING WWII
![]()
Forrest Airfield is located immediately north of the Transcontinental Railway Forrest Siding. It was the Department of Civil Aviation Airfield No. 173, which was an "A" Class airfield. During WWII it was used by civilian aviation and RAAF Transport aircraft.

Photo:- CAHS/Terry Martin collection
Aerial view of Forrest Airfield, looking east in 1973. The Hangar can be seen at the far right.

1945 RAAF Aerodrome Guide via Phil Vabre
Location of Forrest Airfield in WA
The two runways were as follows:-
90 degrees - 4,500 feet x 150 feet wide
177 degrees - 5,000 feet x 150 feet wide
An official RAAF record in the National Archives of Australia describes a single CAD hangar, a 30 bed CAD Hostel, and an RAAF HF/DF station at Forrest Airfield during WWII. There was a W/T circuit or Wireless Telegraphy circuit from Forrest Airfield to Gawler, Alice Springs and NWA which I believe was probably North West Area Headquarters. CAD was probably meant to be an abbreviation for Civil Aviation Department which really should have been called the Department of Civil Aviation.

Photo:- John Lever collection
In Feb 1942, P-40E Warhawks of the
33rd Pursuit Squadron (Provisional) landed
at Forrest Airfield for a refuelling
stop on their way to Perth in Western Australia.

Photo:- CAHS/Ivan Hodder collection
Douglas DC-2 VH-USY Bungana in the hangar at Forrest, February 1942

Photo:- CAHS/Ivan Hodder collection
Lockheed 18-40 Lodestar LT-908 of the ML-KNIL
on a refuelling stop at Forrest Airfield,
in March 1942. The aircraft was carrying evacuees from the NEI to the eastern
states

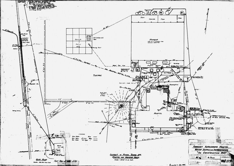
Plan:- NAA
Plan of Forrest Airfield in WA

1945 RAAF Aerodrome Guide via Phil Vabre
Layout of the two runways at Forrest Airfield

Plan:- NAA
Shows the position of the Hostel in relation to the hangar

Photo:- Matthew Coughlin
Hangar at Forrest Airfield

Photo:- Matthew Coughlin
Hangar at Forrest Airfield

Photo:- Matthew Coughlin
Inside the hangar at Forrest Airfield

Photo:- Matthew Coughlin
Some WWII graffiti on a small piece of
concrete.
It appears to say "H. I. Lawson U.S. Army 1942".
The above WWII graffiti on a small piece of concrete was probably associated with some foundations for an old water tank next to the old maintenance hangar. A USAAF Servicing Detail of eight men under the command of 2nd Lt. George N. Paster was based at Forrest Airfield in Western Australia in February 1942. It was one of some twenty two USAAF Servicing Details scattered around Australia in February 1942. The serviceman shown on the concrete probably belonged to the USAAF Servicing Detail at Forrest Airfield.

Photo:- Denis Baker
Marker sign for Forrest taken from
the
Indian Pacific train in November 2024

Photo:- Denis Baker
Hangar at Forrest Airfield taken
from
the Indian Pacific train in November 2024
REFERENCES
"Every Day a Nightmare - American Pursuit Pilots
in the Defense of Java, 1941-1942" - see page 192 and 193
by Bill Bartsch
ACKNOWLEDGEMENTS
I'd like to thank Denis Baker, Phil Vabre, Bill Bartsch and Matthew Coughlin for their assistance with this web page.
Can anyone help me with more information?
"Australia @ War" WWII Research Products
|
© Peter Dunn 2015 |
Please
e-mail me |
This page first produced 25 May 2020
This page last updated 23 November 2024